Lindby – Ett modernt ladhus med tidlös arkitektur
Huset Lindby förenar den klassiska svenska ladans estetik med en modern och minimalistisk formgivning. Detta yteffektiva ladhus är specifikt skapat för dig som värdesätter ljusinsläpp, rymd och en genomtänkt planlösning där varje kvadratmeter fyller en tydlig funktion. Arkitekturen hämtar sin inspiration direkt från det svenska landskapet, men i en uppdaterad version som möter dagens krav på både stil och komfort.
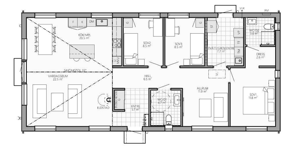
Hjärtat i Lindby är den öppna sällskapsdelen där vardagsrum, kök och matplats smälter samman under ett imponerande invändigt ryggåstak. Genom att placera sociala ytor med ljusinsläpp från tre håll skapas en unik rymd som suddar ut gränsen mellan ute och inne. Det smart planerade vinkelköket, komplett med en social köksö, blir husets naturliga samlingspunkt i direkt anslutning till den ljusa matplatsen.
Planlösningen är tydligt uppdelad i en social och en privat zon för att skapa en harmonisk vardag. I husets mer privata del har vi prioriterat lugn och funktionalitet med fokus på den moderna familjens behov. Här finns ett flexibelt allrum – en perfekt avskild plats för film, spel eller vila – som tack vare en genomtänkt struktur minimerar behovet av långa korridorer. För den som behöver kan allrummet dessutom enkelt omvandlas till ett extra sovrum eller ett rofyllt hemmakontor. Som en extra guldkant på tillvaron är master bedroom utrustat med en egen privat sfär bestående av badrum och en lyxig walk-in-closet.
Ark. SAR/MSA Johan Danielsson


