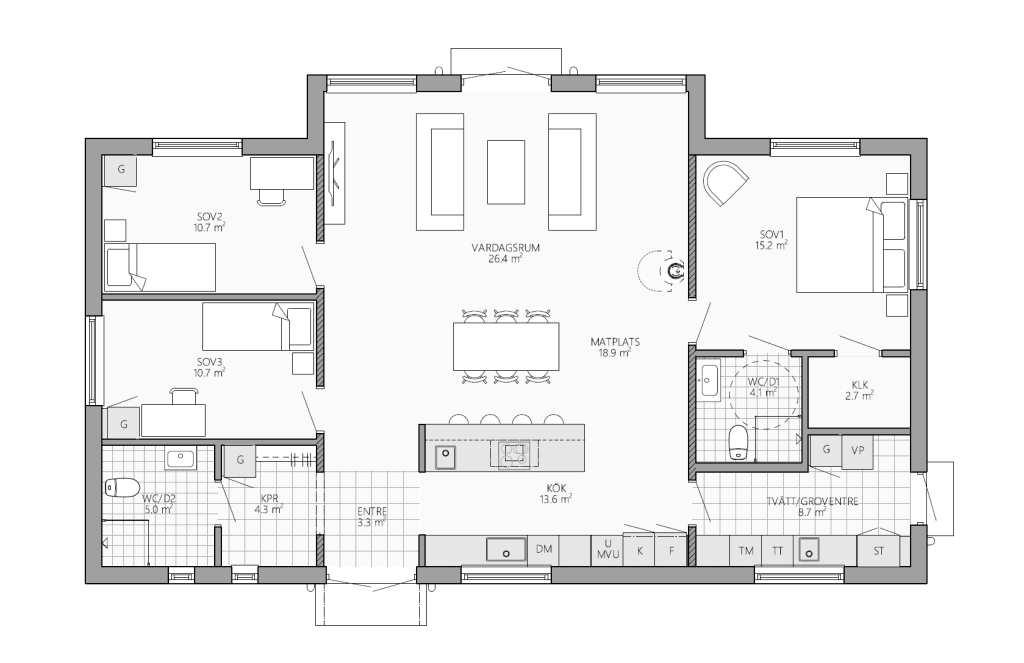
Detta hus är ett nyutvecklat enplanshus i modern ladhusarkitektur, inspirerat av det svenska landskapets former och uttryck. Planlösningen är utformad som ett långhus där den centrala delen utgör hemmets hjärta – en öppen och ljus yta som förenar kök, matsal och vardagsrum.
Stora glaspartier mot trädgården ger generöst dagsljus och skapar en naturlig kontakt mellan inne och ute. Vardagsrummet är placerat längst ut mot trädgårdssidan för maximal utblick, medan köket har kontakt med entrésidan. Den vinklade byggnadskroppen ger huset en dynamisk och arkitektoniskt tydlig fasad.
Planen är smart uppdelad med barn-/ungdomsdel på ena sidan och en mer privat vuxendel på den andra. Föräldrasovrummet har egen wc/d och klädkammare. Entrén är välplanerad med extra kapprum och avskild wc/d.
Ett funktionellt och ljust hem med tydlig karaktär och stark förankring i det svenska landskapet.
Ark. SAR/MSA Johan Danielsson


