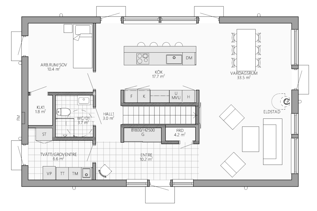
Lyckeby är ett modernt och avskalat hem för dig som söker renhet i arkitekturen. Med inspiration från den tidlösa ladhusstilen kombineras en minimalistisk exteriör med ett fullt inrett vindsplan, vilket skapar en perfekt balans mellan sociala och privata ytor. Medan entréfasaden är strategiskt utformad för att ge lugn och skydd mot insyn, öppnar husets hjärta upp sig mot trädgården genom stora, vackra glaspartier som suddar ut gränsen mellan ute och inne.
Inuti möts du av en imponerande volymkänsla tack vare den öppna planlösningen och ett ljusinsläpp som flödar från flera väderstreck. Köket, med sin generösa köksö vänd mot trädgårdssidan, blir en naturlig samlingsplats som integreras sömlöst med terrassen. Husets genomtänkta nav utgörs av den centralt placerade trappan som skapar en behaglig rundgång mellan de olika rummen.
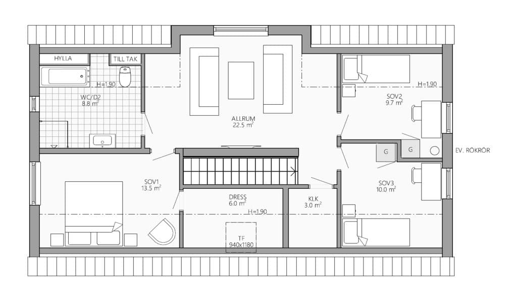
Utöver de sociala ytorna erbjuder entréplanet ett flexibelt arbetsrum eller gästrum, medan det övre planet är en privat oas med tre sovrum och ett stort badrum. Här samlas familjen i ett ljust allrum där en elegant frontespis ger både extra yta och ett vackert dagsljus. Lyckeby är mer än bara ett hus – det är ett arkitektritat hem där varje kvadratmeter är optimerad för en modern livsstil.
Ark. SAR/MSA Sara Jansson




