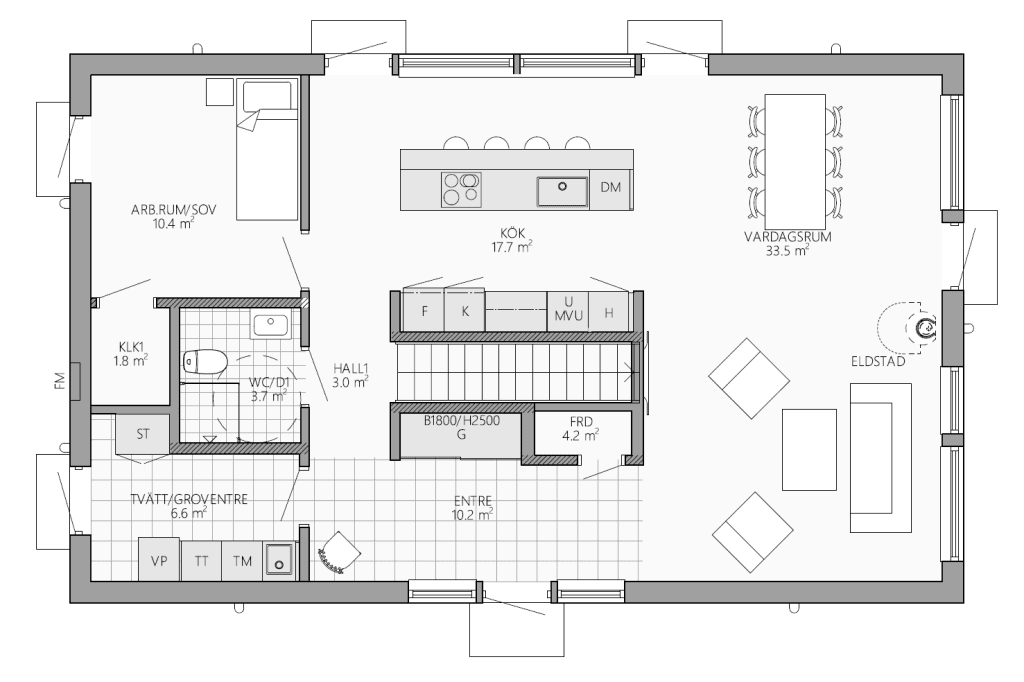
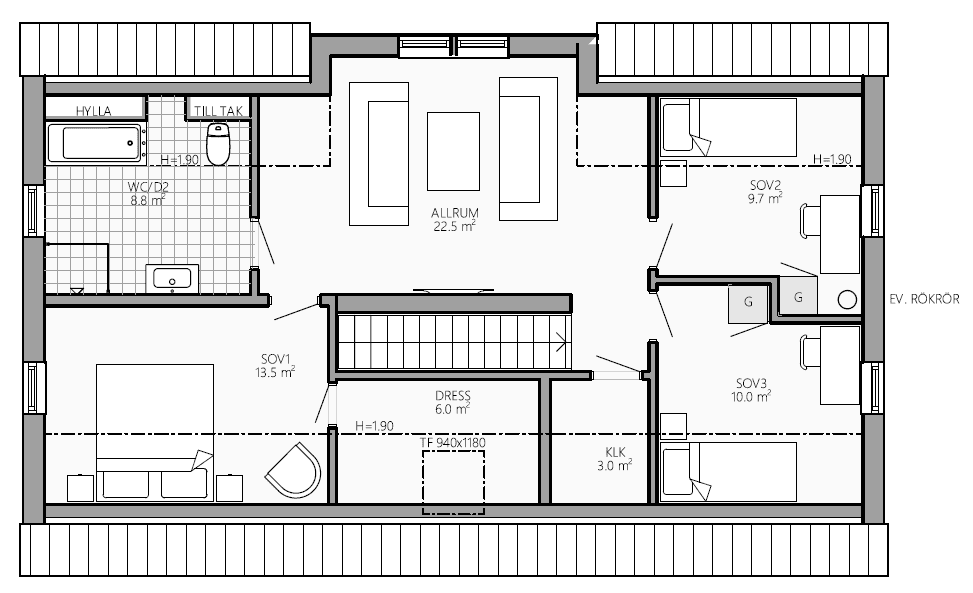
Vackert balanserat hus i skånsk arkitektur.
Lyckeby har också utformats till en skånsk variant med puts. Planstruktur är densamma men fönstersättningen är anpassad till den traditionella rytmen och proportionen som ett klassiskt hus har historiskt. De stora glaspartierna ersätts med separata fönster med en vägg emellan som ger ett rytmiskt inflöde av dagsljus till hela fasadens längd.
Arkitekt: SAR/MSA Sara Jansson, SAR/MSA Johan Danielsson



