
Hålkedalshöjd
- Status
- Försäljning pågår
- Antal objekt
- 11
- Adress
- Ljungbergsvägen
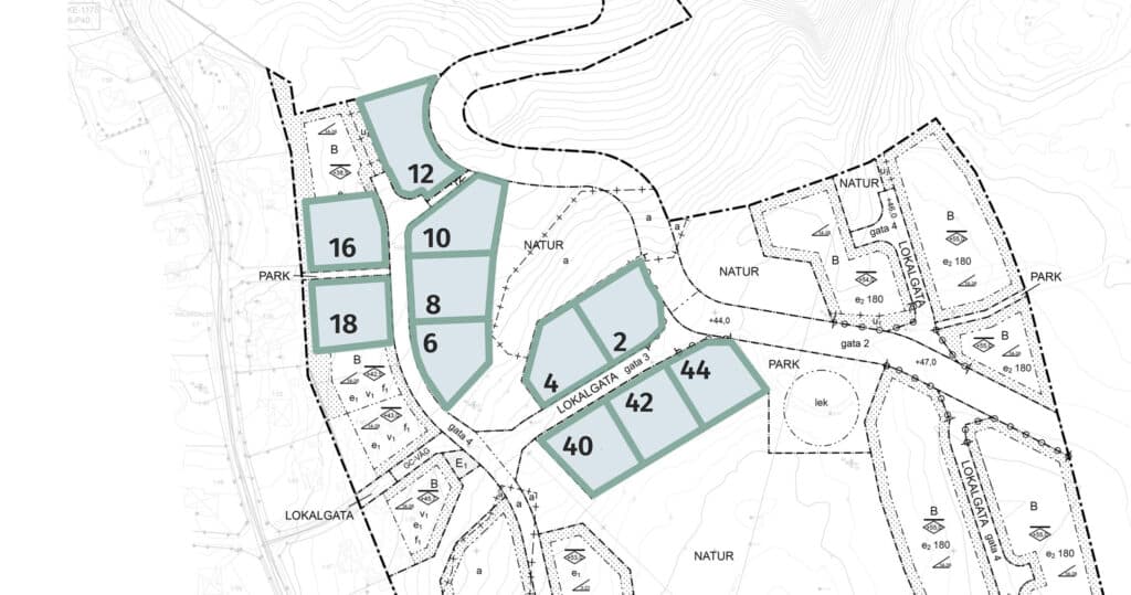
Naturskönt belägna tomter mellan 945 och 1285 kvm med högt och soligt läge och behagligt avstånd till allmänna kommunikationer, havet och staden. Här kan ett dopp i Starekilen bli en trevlig morgonrutin! På kort gångavstånd finns dessutom både båthamn och vackra promenadstråk. Att ta cykeln till centrala Strömstad, Lagunen eller Daftö blir en behaglig tur i vackra omgivningar.
Här kan du bygga valfritt hus ur vårt breda sortiment.
- Tomt
- 2
- Tomtyta
- -
- Tomtpris
- 2 400 000 kr
- Status
- Till salu
- Tomt
- 4
- Tomtyta
- -
- Tomtpris
- 2 400 000 kr
- Status
- Till salu
- Tomt
- 6
- Tomtyta
- -
- Tomtpris
- 1 800 000 kr
- Status
- Till salu
Säljare


